精選優惠券

中川政七商店與堀田地毯跳脫了生活雜貨與地毯的既有框架,以「工藝建材」為主題,合作成立「Tactile Material株式會社」,為了讓民眾能夠親身體驗這些工藝建材,於2025年3月9日設立了一座獨棟出租的住宿空間 「TACTILE HOUSE OSAKA」,中川政七商店與堀田地毯透過融合工藝力量的建築材料「工藝建材」,提出嶄新的構想:讓建築空間也能具備【tactile:觸覺】的選擇。

在向來以「視覺」為主的現代建築設計中,希望可以注入具有自然之美與手感質地的觸覺體驗,藉由「工藝建材」,提案一種能夠創造舒適生活的新方式。

「Tactile Material株式會社」,以下列三大主軸開展業務:
1. 原創工藝建材的開發與販售
2. 工藝建材的批發事業
3. 觸覺體驗設施的營運與製作

作為這項新興合作事業的第一步,即是推出能夠實際體驗工藝建材魅力的住宿設施—「TACTILE HOUSE OSAKA」。在這座空間中,將使用包含漆藝、和紙等多樣的工藝建材,透過實際居住的「體感」,讓更多人理解其價值,進而促成導入到各類設施與住宅中。


中川政七商店以「讓日本工藝重拾活力!」為願景,長期致力於體現工藝精神的生活雜貨製造與零售,並提供工藝製造商的經營顧問服務。在這過程中,逐漸體認到,讓工藝得以煥發生機的方式,不僅就只是在生活雜貨上,更需要進一步邁向更大規模的製造領域—如室內設計與建築材料等,也都是可以振興工藝的重要選項。

同樣地,堀田地毯則是以「讓地毯成為日本的文化!」為願景,專注於羊毛地毯的製造與販售。同時,他們也始終懷抱著「希望能打造一個可以實際體驗的場域,並進一步提出不僅只限於地毯、而是整體空間的可能性」這樣的想法。



正是因為雙方的願景與理念產生了共鳴,「Tactile Material」因此誕生,透過開發與銷售工藝建材,並提供可實際體驗的場域,為人們的生活提出一個全新的選項—「觸覺」。
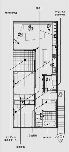
「TACTILE HOUSE OSAKA」是一間整棟出租的住宿設施,讓民眾可以透過實際入住的體驗,親自感受工藝建材所帶來的舒適感與美感。整棟建築物佔地189坪,總樓地板面積59坪,為兩層樓構造。1樓設有展示空間與辦公空間,2樓則為住宿空間。整個空間裡,每處都是由Tactile Material所打造的工藝建材而組成。

設於室內中央的裝飾柱選用越前漆工藝,混入羊毛的和紙拉門則是使用了越前和紙。此外,洗手台是採用伊達冠石所製作,而包含衛浴在內的所有房間皆鋪設羊毛地毯,讓住宿者能透過指尖、腳底、甚至整個身體,都可以細膩地感受到這些工藝建材所帶來的豐富觸感。
除了提供一般旅客的住宿與整棟包租選項,也為建築業界相關人士及業主提供專人導覽介紹設施的服務,讓更多人有機會深入理解這些工藝建材的真實魅力。

TACTILE HOUSE OSAKA
地址:日本大阪府和泉市阪本町162番地
樓層構成:
·1樓:展示間、辦公室
·2樓:住宿樓層(客廳、廚房、2間臥室、浴室、儲藏室、陽台)
預約網站:https://tactilehouse-osaka.booking.chillnn.com/
撰文:Susan
照片提供:中川政七商店
責編:Riichi/ 步步日本編輯部
Perfume成員Kashiyuka擔任店主!「Kashiyuka商店」與中川政七商店攜手,全國四大城市快閃登場
【東京車站】GRANSTA東京:中川政七商店第一間服飾專門店開幕
走訪大阪萬博2025:必遊日本館、TECH WORLD館亮點、世界展館精選、美食交通全指南
延伸閱讀
作者資訊
《步步日本》網站於 2009 年 9 月 30 日起開始營運,由經營導遊書豐富經驗的日本 MEDIA PORTA 出版社(株式会社メディアポルタ)所成立的旅遊網站。提供旅人最新、最在地的日本情報,介紹日本的吃喝玩樂、新鮮商品、文化觀察或心情點滴,讓喜歡到日本旅遊的台灣人,可以為自己規劃出一段個性旅程。








